LAND / ESTATE AGENTS, VALUERS & RURAL CONSULTANTS
Leswalt, Stranraer, DG9 0RH
A CHARMING TRADITIONAL STONE BUILT COTTAGE WITH GRAZING PADDOCKS SITUATED A SHORT DISTANCE FROM THE BEAUTIFUL COASTLINE ON THE NORTH RHINS OF GALLOWAY
Offered for Sale
Offers in the Region of£160,000
**PRICE REDUCTION FROM £170,000 TO £160,000**
Nestled in a beautiful rural setting on the North Rhins of Galloway peninsula, Monument Cottage offers a truly unique lifestyle opportunity in one of Scotland’s most peaceful and unspoiled regions surrounded by open countryside with the John Agnew Monument as the backdrop and on a clear day Ailsa Criag can be seen from the garden grounds. This charming cottage enjoys far reaching open views with beautiful sunsets and spectacular darks skies.

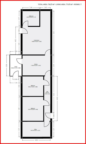
Monument Cottage is of traditional whitewashed stone-built construction set under a slated roof and although requires full refurbishment offers a superb blank canvas to create a wonderful home. At present the accommodation comprises of a lounge, kitchen, snug and two bedrooms but could well have potential for extending the footprint. Any interested party wishing to pursue this will need to make their own enquiries with the regional council.

A feature of the property is the extensive grounds part of which are landscaped and other parts in the past have been utilised for grazing small ponies and housing chicken coops. Given the location of the property a bounty of native wildlife can be enjoyed on a daily basis and outdoor pursuits are available straight from the doorstep.

£115,000.00
Dalbeattie, Dumfries & Galloway, DG5 4EW
Offered For Sale: CottageA CHARMING TRADITIONAL SPLIT-LEVEL COTTAGE SITUATED IN A POPULAR RESIDENTIAL AREA OF DALBEATTIE INCORPORATING GARDEN GROUNDS AND A DETACHED GARAGE
More Details >
£125,000.00
Drummore, Stranraer DG9 9HL
Offered For Sale: CottageA TRADITIONAL PARTLY REFURBISHED COTTAGE WITH A LAPSED BUILDING WARRANT FOR EXPANSION ENJOYING STUNNING COASTAL VIEWS TOWARDS THE MULL OF GALLOWAY
More Details >
£178,000.00
Beattock, Moffat, DG10 9RD
Offered For Sale: CottageA TRADITIONAL SEMI-DETACHED COTTAGE OCCUPYING AN ELEVATED SITE WITH OPEN COUNTRYSIDE VIEWS ACROSS THE MOFFAT HILLS AND BEYOND
More Details >
£200,000.00
Balmaclellan, Castle Douglas, DG7 3PW
Offered For Sale: Cottage** PRICE REDUCTION ** A TRADITIONAL GALLOWAY COTTAGE SITUATED JUST ON THE PERIPHERY OF THE PRETTY VILLAGE OF BALMACLELLAN BENEFITTING FROM AN AREA OF AMENITY LAND
More Details >
£195,000.00
Whithorn, Newton Stewart, DG8 8DL
Offered For Sale: CottageA CHARMING TRADITIONAL STONE BUILT TWO STOREY COTTAGE OCCUPYING A VERY GENEROUS PLOT WITH OPEN COUNTRYSIDE VIEWS AND WITHIN CLOSE PROXIMITY TO THE PRETTY VILLAGE OF WHITHORN
More Details >